Höst-4
1472 pi²
SOUS-SOL + RDC
Style scandinave
Gamme Standard
i
Prix à partir de :
- Prêt-à-finir : 375 000 $ *
- Clé en main : 509 000 $ *
* Terrain, infrastructures et taxes en sus.
Inclus :
4 chambres
2 salles de bain
Terrasse
Sous-sol fini
Grande fenestration
Isolation supérieure
Certification Novoclimat
En option :
Plafond cathédrale
Foyer
Terrasse couverte
Pièce 3 saisons
Rez-de-jardin
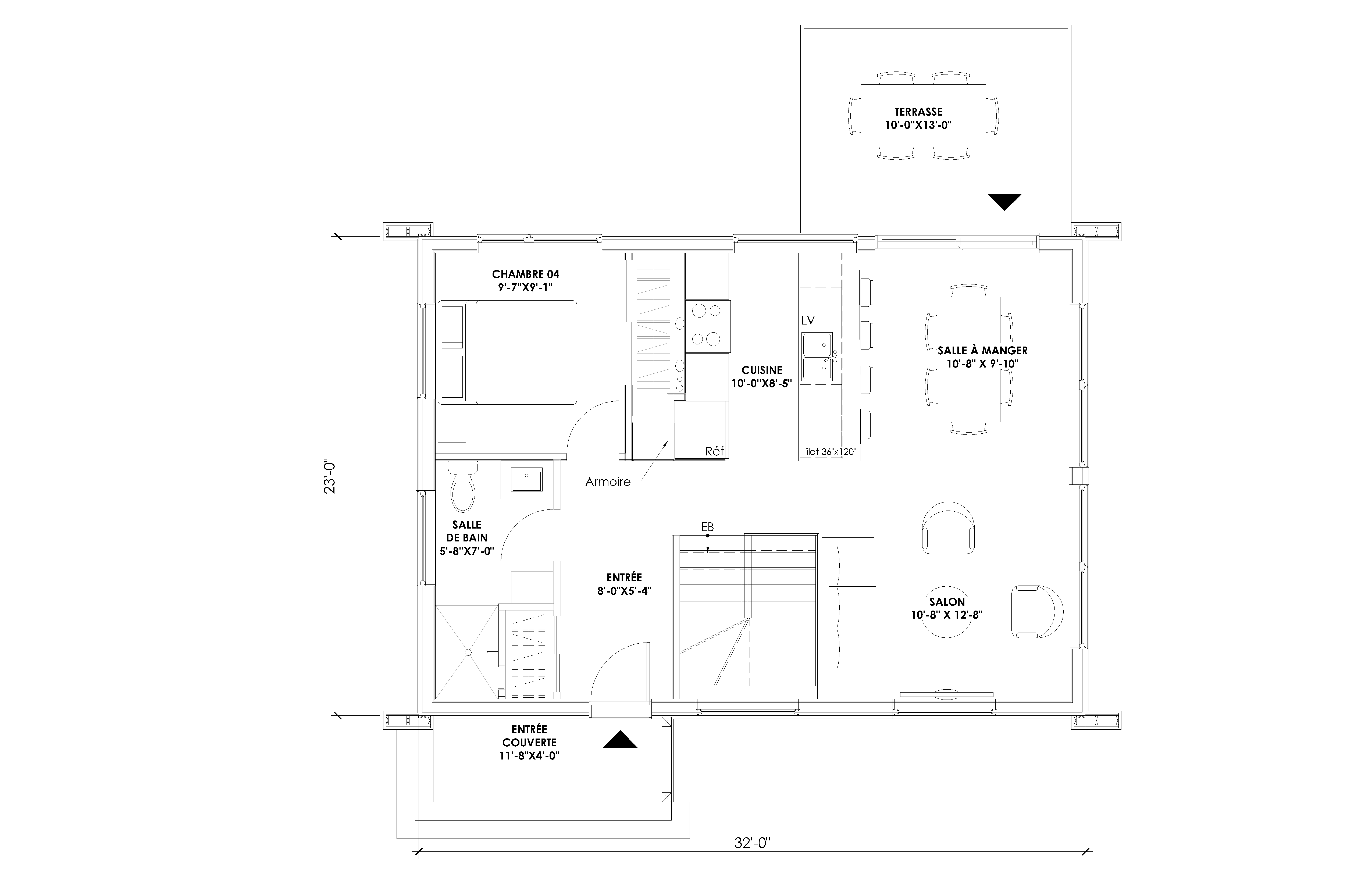
Avec ses 1472 pieds carrés répartis sur un rez-de-chaussée et un sous-sol, cette maison lumineuse offre quatre chambres et deux salles de bains, vous apprécierez sa magnifique fenestration permettant de profiter d’une vue imprenable sur la nature environnante. Son design scandinave, à la fois écologique et sain, peut être agrémenté d’options comme un plafond cathédrale ou un rez-de-jardin pour encore plus de confort.
PLANS
Höst-4 • SOUS-SOL + RDC 1472 pi²
Rez-de-chaussée

Sous-sol

Ce modèle vous intéresse ?
Contactez-nous
Vous demeurez à l’extérieur de notre zone d’activités ou vous souhaitez réaliser vous-même la construction de cette propriété? Belvedair vous offre la possibilité de faire l’achat de ce plan.
Acheter ce plan
VOUS POURRIEZ AUSSI AIMER
Höst-M-2 (+2)
À partir de 459 000 $
1174 pi²
SOUS-SOL + RDC + MEZZANINE
2 ch. + 2 sdb
Gamme Standard

Skögen-3
À partir de 349 000 $
1360 pi²
SOUS-SOL + RDC
3 ch. + 1 sdb + 1 s.d'eau
Gamme Standard

Lönn-3+
À partir de 449 000 $
1602 pi²
PLAIN-PIED
3 ch. + 2 sdb
Gamme +

Vous êtes à la recherche d'un terrain ?
Découvrez nos écodomaines
Vous avez des questions ou désirez en savoir plus sur Belvedair ?
Remplissez ce formulaire et nous vous contacterons dans les plus brefs délais.