Höst-4+
1772 pi²
RDJ + RDC
Style scandinave
Gamme +
i
Prix à partir de :
- Prêt-à-finir : 499 000 $ *
- Clé en main : 689 000 $ *
* Terrain, infrastructures et taxes en sus.
Inclus :
4 chambres
3 salles de bain
Salle de lavage
Terrasse couverte
Plafond cathédrale
Grande fenestration
Isolation supérieure
Certification Novoclimat
En option :
Foyer
Pièce 3 saisons
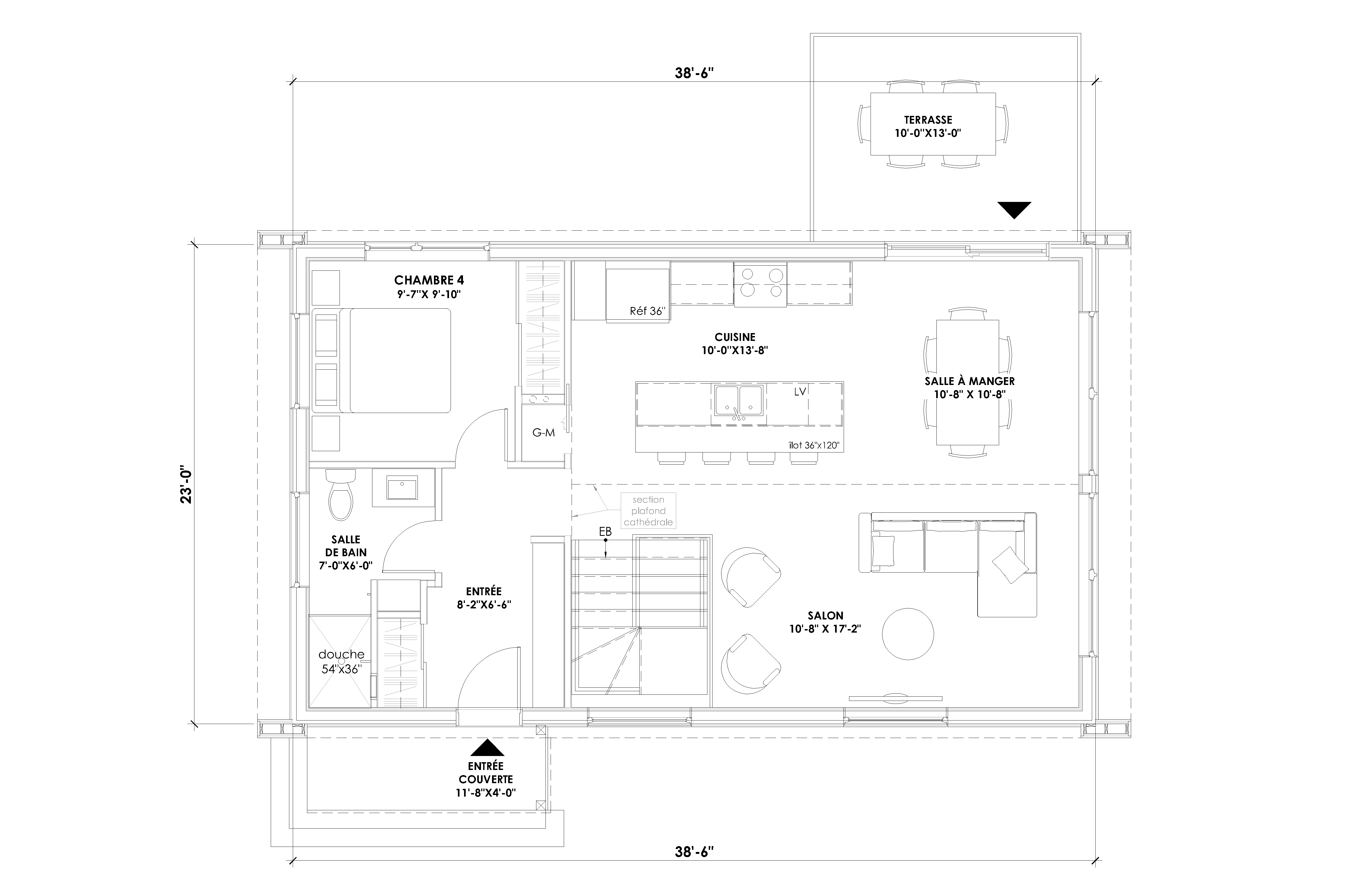
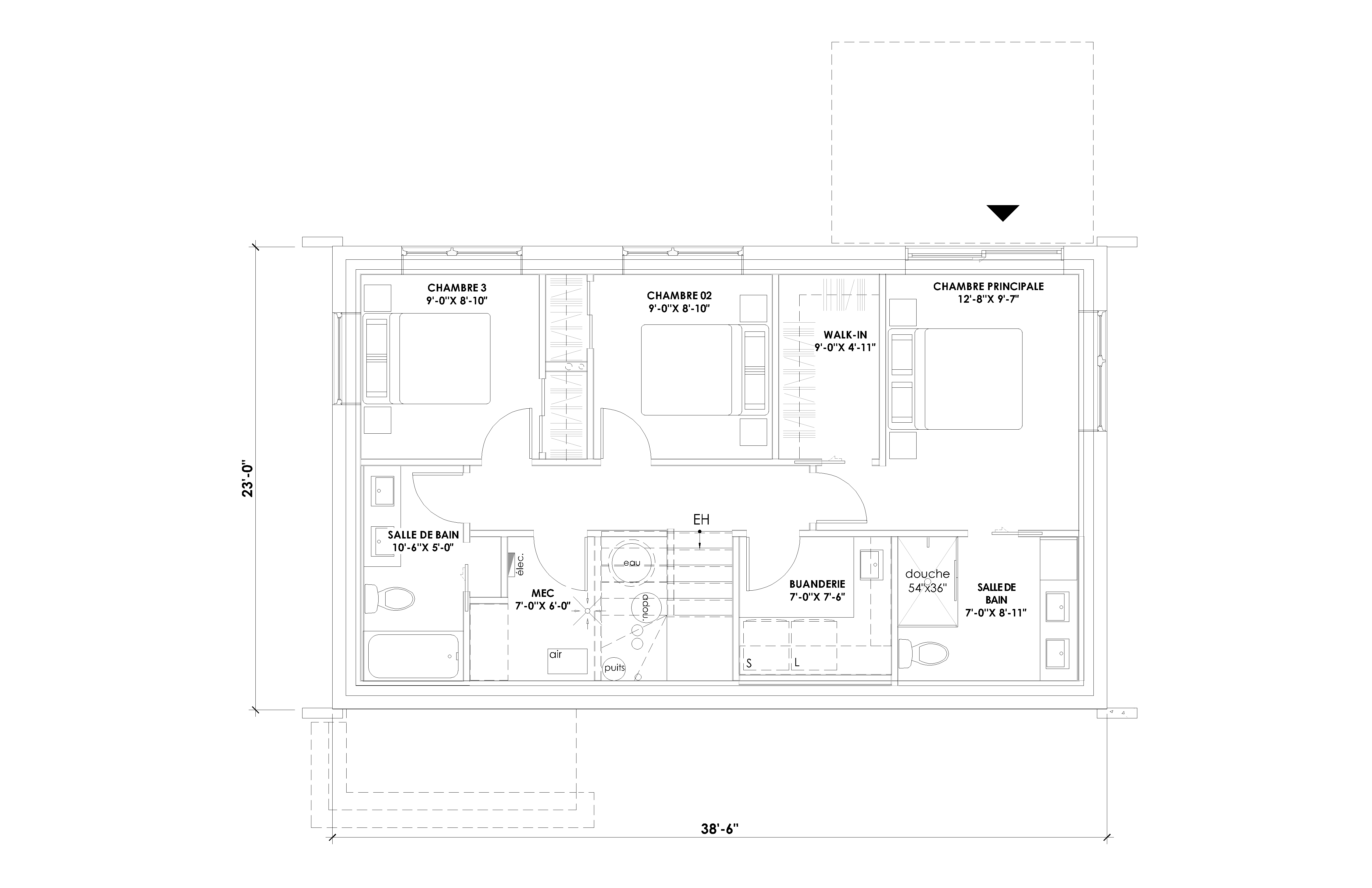
Vivez au rythme de la nature dans cette maison HÖST-4+ de 1772 pieds carrés répartis sur deux niveaux, avec un rez-de-jardin et un rez-de-chaussée. Comprenant quatre chambres, trois salles de bains, ainsi qu’une terrasse couverte, elle est parfaite pour profiter de l'extérieur. Grâce à son plafond cathédrale et sa superbe fenestration, vous pourrez admirer la nature tout en baignant dans la lumière. Ce modèle scandinave, conçu dans une perspective écologique, saura vous charmer par ses lignes épurées. En plus, vous pourrez personnaliser l’espace avec des options comme une pièce 3 saisons et un foyer pour rendre votre rêve de maison écologique encore plus concret.
PLANS
Höst-4+ • RDJ + RDC 1772 pi²
Rez-de-chaussée

Rez-de-jardin

Ce modèle vous intéresse ?
Contactez-nous
Vous demeurez à l’extérieur de notre zone d’activités ou vous souhaitez réaliser vous-même la construction de cette propriété? Belvedair vous offre la possibilité de faire l’achat de ce plan.
Acheter ce plan
VOUS POURRIEZ AUSSI AIMER
Höst-M-2 (+2)
À partir de 459 000 $
1174 pi²
SOUS-SOL + RDC + MEZZANINE
2 ch. + 2 sdb
Gamme Standard

Kami-3+
À partir de 509 000 $
1548 pi²
PLAIN-PIED
3 ch. + 2 sdb
Gamme +

Ada-3
À partir de 315 000 $
1211 pi²
PLAIN-PIED
3 ch. + 1 sdb
Gamme Standard

Vous êtes à la recherche d'un terrain ?
Découvrez nos écodomaines
Vous avez des questions ou désirez en savoir plus sur Belvedair ?
Remplissez ce formulaire et nous vous contacterons dans les plus brefs délais.