HÖST-3+
1680 pi²
RDJ + RDC
Style Scandinave
Gamme Standard i
Prix à partir de :
  • Prêt-à-finir : 509 000 $ * i
  • Clé en main : 675 000 $ * i
* Terrain, infrastructures et taxes en sus.
Inclus :
3 chambres
2 salles de bain
1 salle d'eau
Coin bureau
Toiture pour terrasse
Plafond cathédrale
Grande fenestration
Isolation supérieure
Certification Novoclimat
En option :
Lambris sur plafond cathédrale
Foyer
Pièce 3 saisons
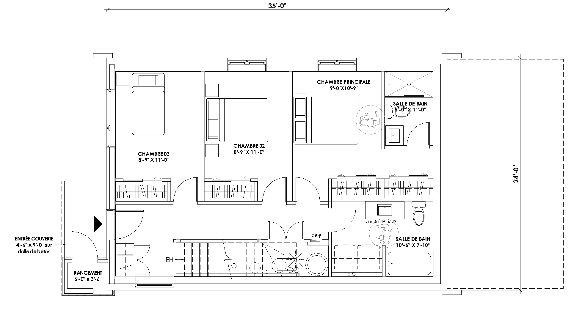
Avec ses 1680 pi² répartis sur un rez-de-jardin et un rez-de-chaussée, cette maison de 3 chambres vous propose un espace lumineux où le plafond cathédrale et la grande fenestration laissent entrer la nature au cœur de votre quotidien. Son coin bureau, sa toiture prête à accueillir une terrasse et son isolation supérieure créent un cadre de vie confortable et durable, où chaque saison se savoure pleinement.
PLANS
HÖST-3+ • RDJ + RDC 1680 pi²
Rez-de-chaussée
Rez-de-jardin
Ce modèle vous intéresse ?
Contactez-nous
Vous demeurez à l’extérieur de notre zone d’activités ou vous souhaitez réaliser vous-même la construction de cette propriété? Belvedair vous offre la possibilité de faire l’achat de ce plan.
Acheter ce plan

VOUS POURRIEZ AUSSI AIMER

HÖST-M-2 (+2)
À partir de 489 000 $
1174 pi²
SOUS-SOL + RDC + MEZZANINE
2 ch. + 2 sdb
Gamme Standard
HÖST-M-2 (+2)
LITA-3
À partir de 359 000 $
1400 pi²
SOUS-SOL + RDC
3 ch. + 1 sdb + 1 s.d'eau
Gamme Standard
LITA-3
STUGA-2 (+3)
À partir de 389 000 $
903 pi²
SOUS-SOL + RDC
2 ch. + 1 sdb
Gamme Standard
STUGA-2 (+3)
Vous êtes à la recherche d'un terrain ?
Découvrez nos écodomaines

Vous avez des questions ou désirez en savoir plus sur Belvedair ?

 

Remplissez ce formulaire et nous vous contacterons dans les plus brefs délais.

Comment avez-vous entendu parler de Belvedair?
Choisissez vos préférences de navigation
Nous utilisons des cookies essentiels pour assurer le bon fonctionnement de notre site. D’autres cookies, analytiques et marketing, nous aident à mesurer la performance et à améliorer votre expérience. Les cookies non essentiels ne seront activés qu’avec votre consentement.