HÖST-3 (+2)
1520 pi²
SOUS-SOL + RDC + ÉTAGE
Style Scandinave
Gamme Standard
i
Prix à partir de :
- Prêt-à-finir : 525 000 $ * i
- Clé en main : 689 000 $ * i
* Terrain, infrastructures et taxes en sus.
Inclus :
3 chambres
2 salles de bain
1 salle d'eau
1 salle d'eau
Terrasse
Sous-sol non fini
Grande fenestration
Isolation supérieure
Certification Novoclimat
En option :
Aménagement du sous-sol (+760)
Foyer
Terrasse couverte
Pièce 3 saisons
Avec son architecture scandinave épurée, ce plan offre 1520 pi² répartis sur deux niveaux, auxquels s’ajoute un sous-sol pensé pour être entièrement aménagé, portant la superficie totale à 2280 pi². Trois chambres, deux salles de bain et une salle d’eau composent un espace modulable et accueillant, prêt à évoluer au rythme de votre famille. Une invitation à adopter un mode de vie paisible, lumineux et ancré dans la nature.
PLANS
HÖST-3 (+2) • SOUS-SOL + RDC + ÉTAGE 1520 pi²
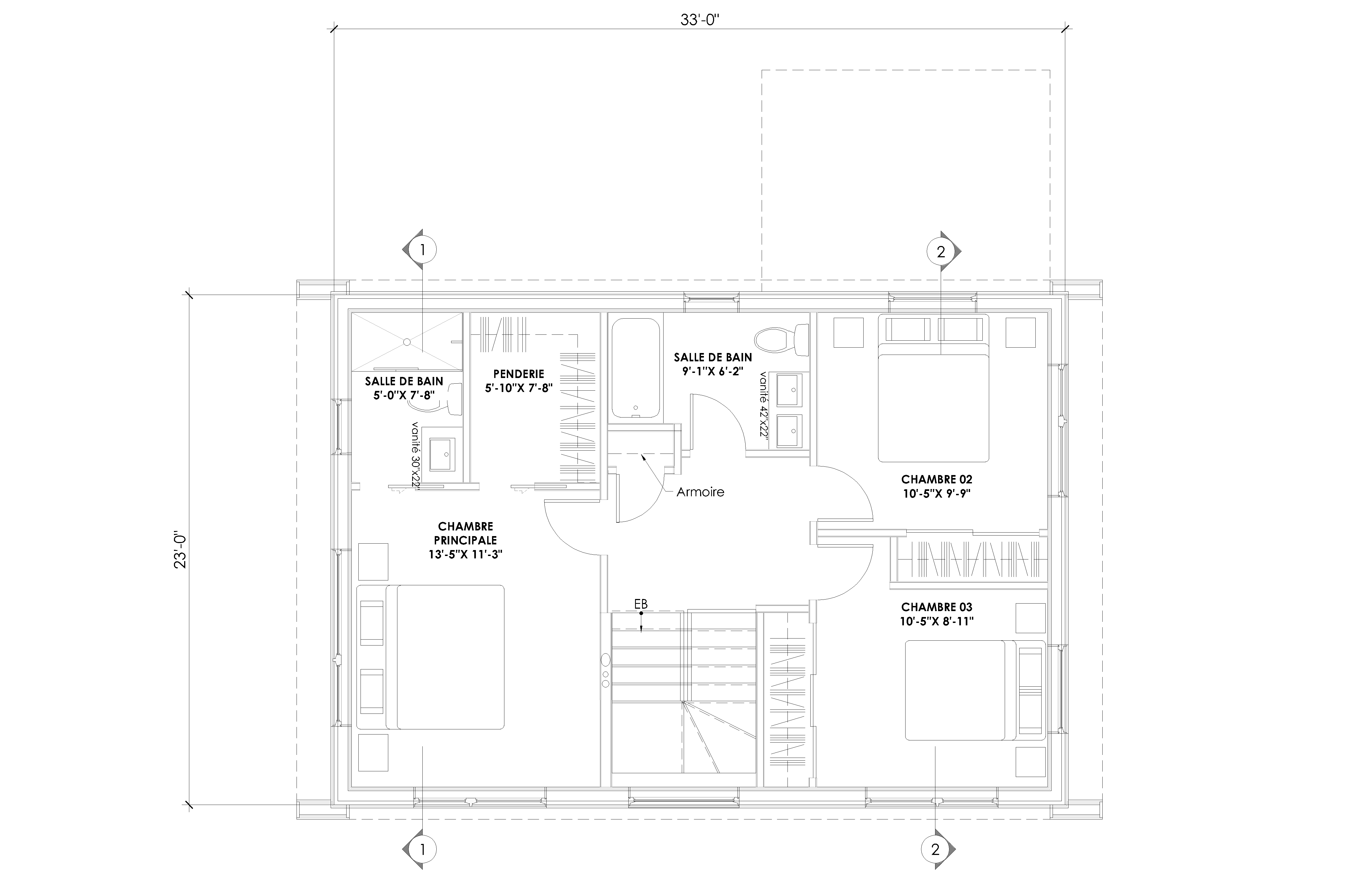
Étage
© Belvedair. Tous droits réservés. Toute reproduction, diffusion ou transmission à des tiers est strictement interdite sans autorisation.
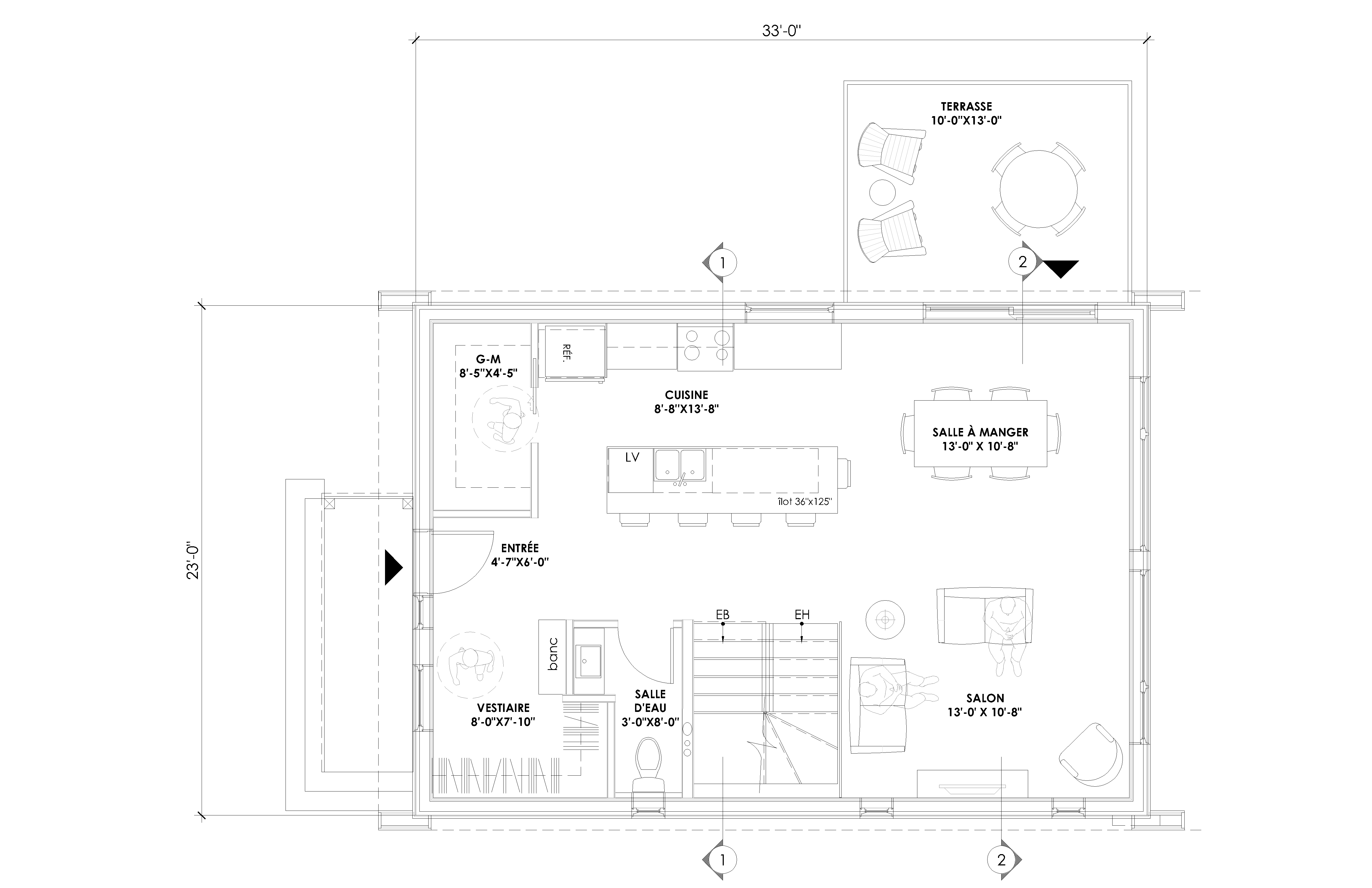
Rez-de-chaussée
© Belvedair. Tous droits réservés. Toute reproduction, diffusion ou transmission à des tiers est strictement interdite sans autorisation.
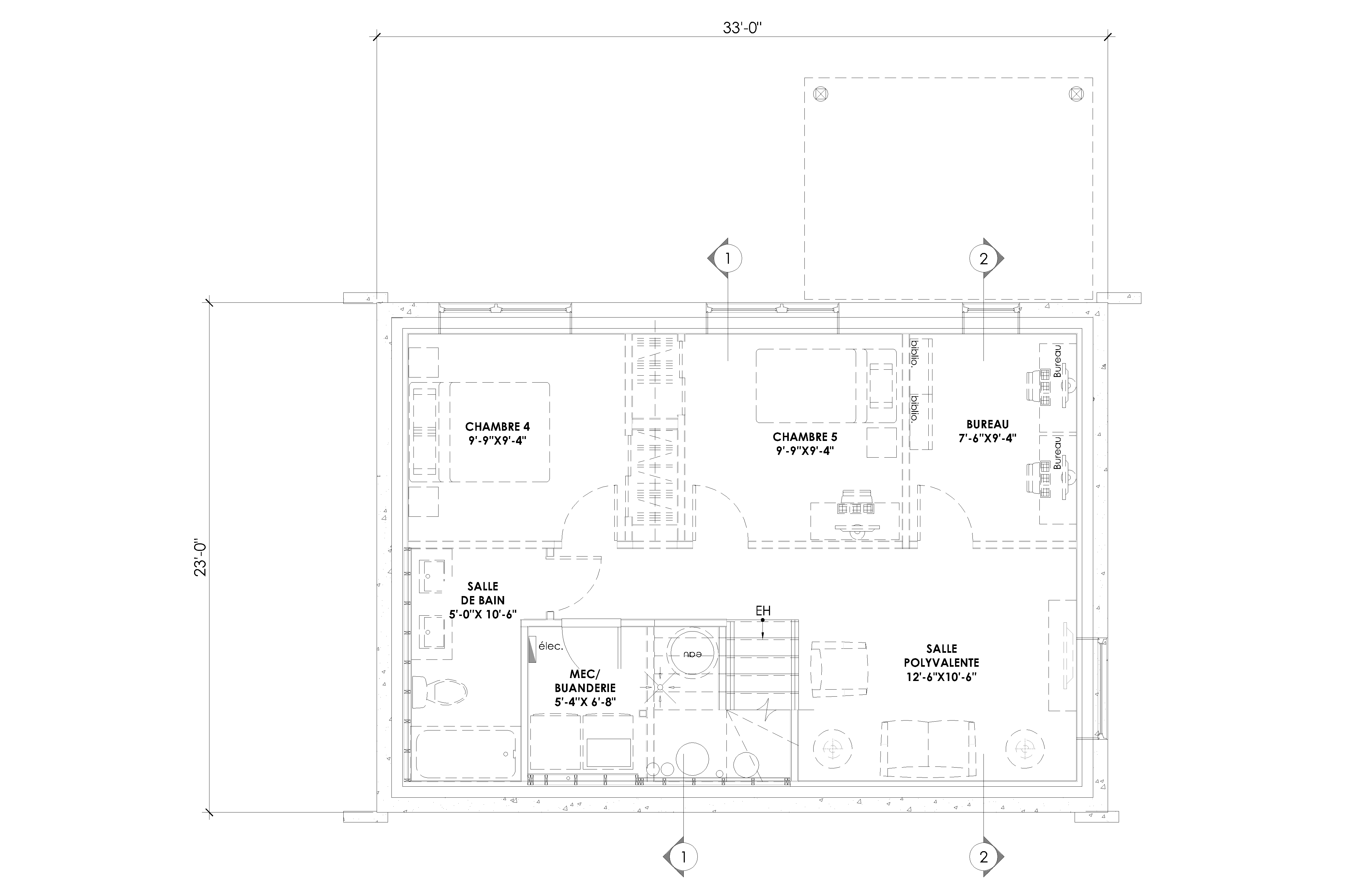
Sous-sol
© Belvedair. Tous droits réservés. Toute reproduction, diffusion ou transmission à des tiers est strictement interdite sans autorisation.
Ce modèle vous intéresse ?
Contactez-nous
Vous demeurez à l’extérieur de notre zone d’activités ou vous souhaitez réaliser vous-même la construction de cette propriété? Belvedair vous offre la possibilité de faire l’achat de ce plan.
Acheter ce plan
VOUS POURRIEZ AUSSI AIMER
Lönn-3
À partir de 359 000 $
1269 pi²
PLAIN-PIED
3 ch. + 1 sdb
Gamme Standard
Höst-M-2 (+2)
À partir de 489 000 $
1174 pi²
SOUS-SOL + RDC + MEZZANINE
2 ch. + 2 sdb
Gamme Standard
Skögen-3
À partir de 365 000 $
1360 pi²
SOUS-SOL + RDC
3 ch. + 1 sdb + 1 s.d'eau
Gamme Standard
Vous êtes à la recherche d'un terrain ?
Découvrez nos écodomaines
Vous avez des questions ou désirez en savoir plus sur Belvedair ?
Remplissez ce formulaire et nous vous contacterons dans les plus brefs délais.