Träd-3+
1656 pi²
RDJ + RDC
Style scandinave
Gamme +
i
Prix à partir de :
- Prêt-à-finir : 475 000 $ *
- Clé en main : 645 000 $ *
* Terrain, infrastructures et taxes en sus.
Inclus :
3 chambres
2 salles de bain + 1 salle d'eau
Terrasse couverte
Plafond cathédrale
Bureau
Grande fenestration
Isolation supérieure
Certification Novoclimat
En option :
Lambris sur plafond cathédrale
Pièce 3 saisons
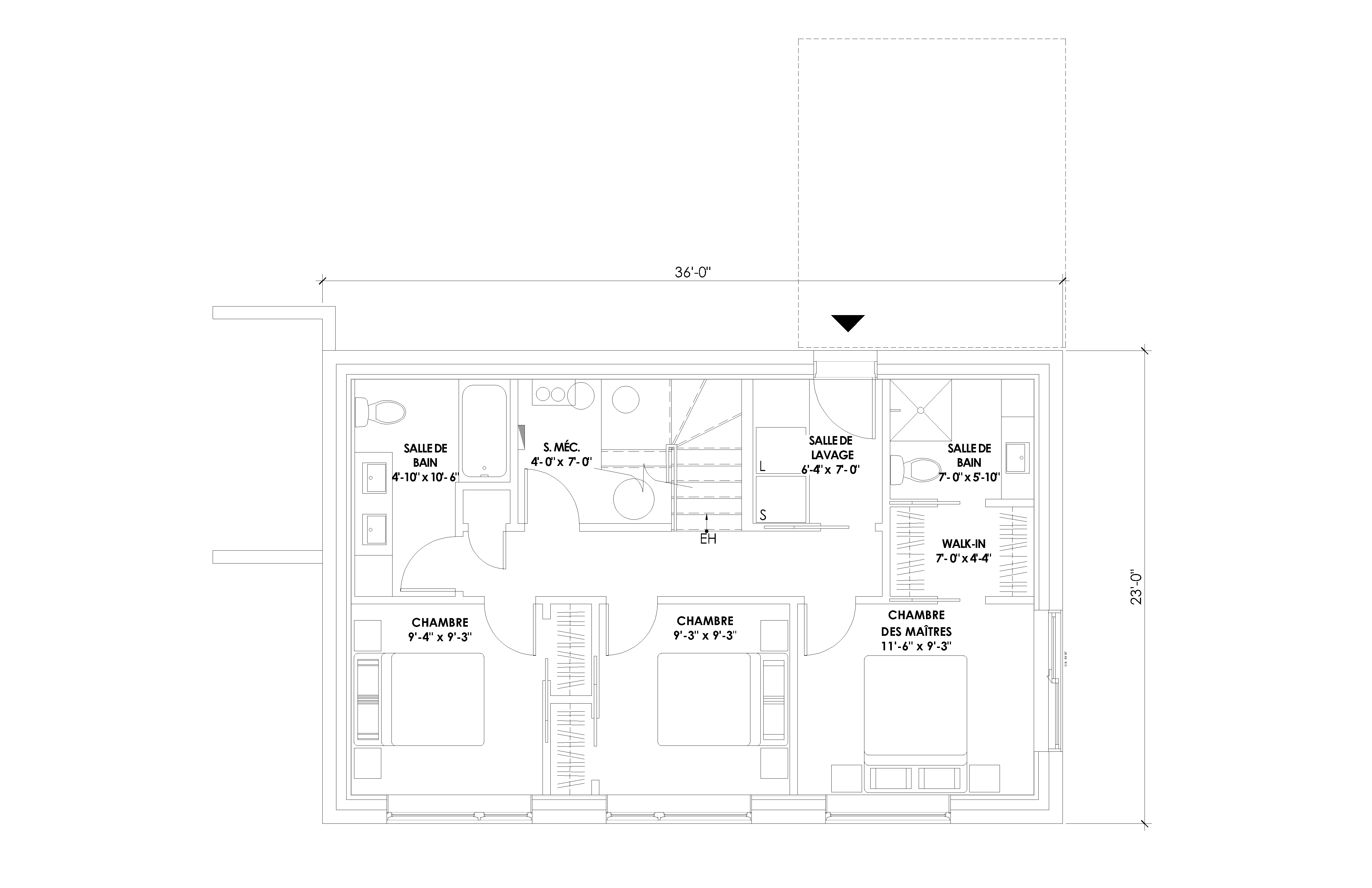
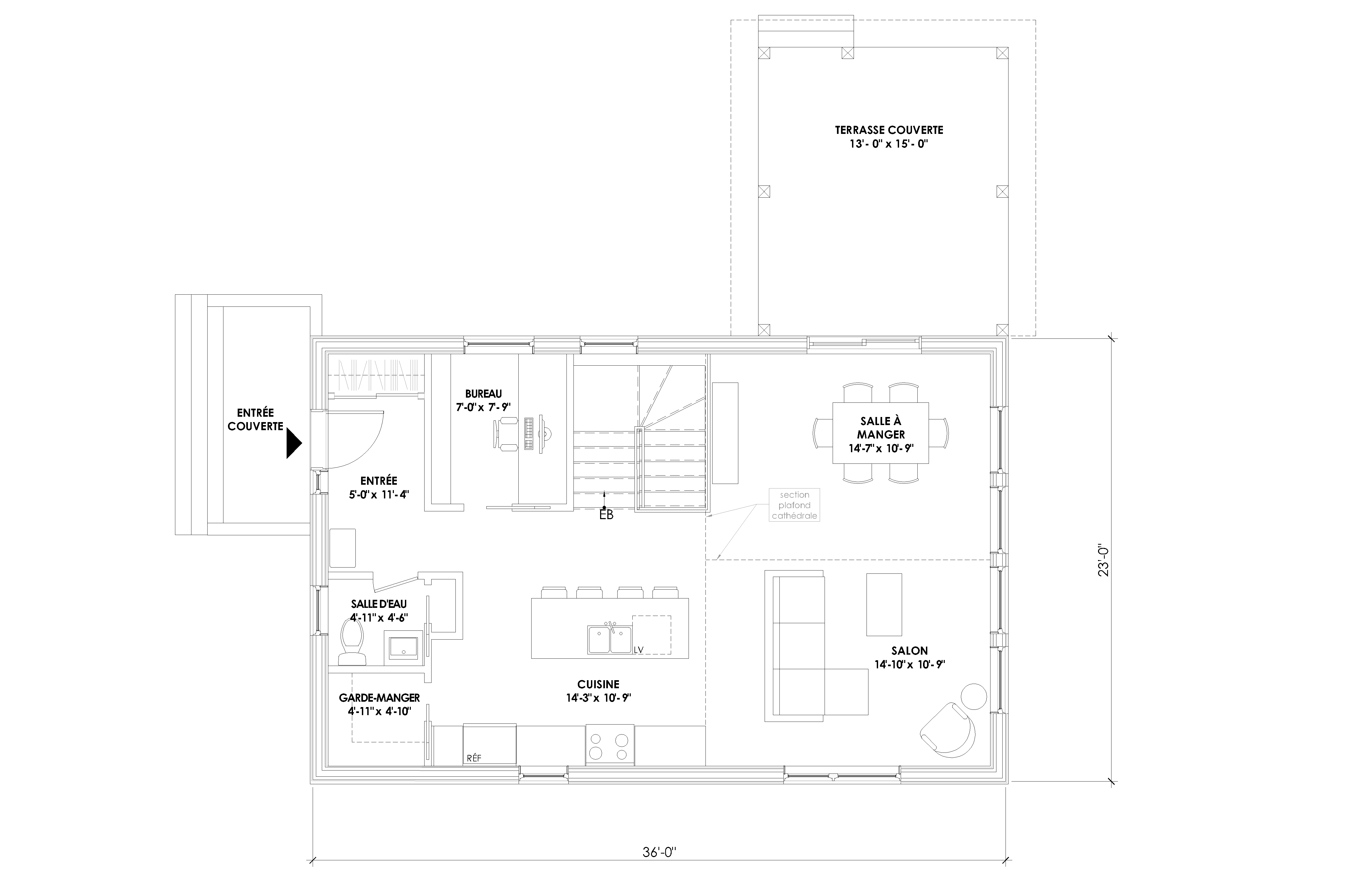
Avec ses 1656 pieds carrés, répartis entre un rez-de-jardin et un rez-de-chaussée, le modèle TRÄD-3+ vous offre un espace de vie lumineux et ouvert. Vous y trouverez trois chambres, un bureau, deux salles de bain et une salle d’eau, ainsi que de vastes aires de vie où chaque moment devient une invitation à profiter de la nature. Grâce à sa grande fenestration et sa terrasse spacieuse, vous pourrez savourer la beauté de l’extérieur tout en restant à l’intérieur, créant ainsi une harmonie parfaite entre confort et environnement. Réalisez dès maintenant votre rêve de maison en pleine nature.
PLANS
Träd-3+ • RDJ + RDC 1656 pi²
Rez-de-jardin

Rez-de-chaussée

Ce modèle vous intéresse ?
Contactez-nous
Vous demeurez à l’extérieur de notre zone d’activités ou vous souhaitez réaliser vous-même la construction de cette propriété? Belvedair vous offre la possibilité de faire l’achat de ce plan.
Acheter ce plan
VOUS POURRIEZ AUSSI AIMER
Ada-2+
À partir de 289 000 $
875 pi²
PLAIN-PIED
2 ch. + 1 sdb
Gamme +

Lita-3
À partir de 345 000 $
1400 pi²
SOUS-SOL + RDC
3 ch. + 1 sdb + 1 s.d'eau
Gamme Standard

Kami-3+
À partir de 509 000 $
1548 pi²
PLAIN-PIED
3 ch. + 2 sdb
Gamme +

Vous êtes à la recherche d'un terrain ?
Découvrez nos écodomaines
Vous avez des questions ou désirez en savoir plus sur Belvedair ?
Remplissez ce formulaire et nous vous contacterons dans les plus brefs délais.