Höst-2
850 ft²
ONE STOREY
scandinavian style
Standard Range
i
Price starting at:
- Ready to finish: 279 000 $ *
- Turnkey: 359 000 $ *
* Property, infrastructures and taxes extra
Included:
2 bedrooms
Large windows
Superior insulation
Novoclimat certification
Optional:
Cathedral ceiling
Fireplace
Terrace with roof
Screened porch
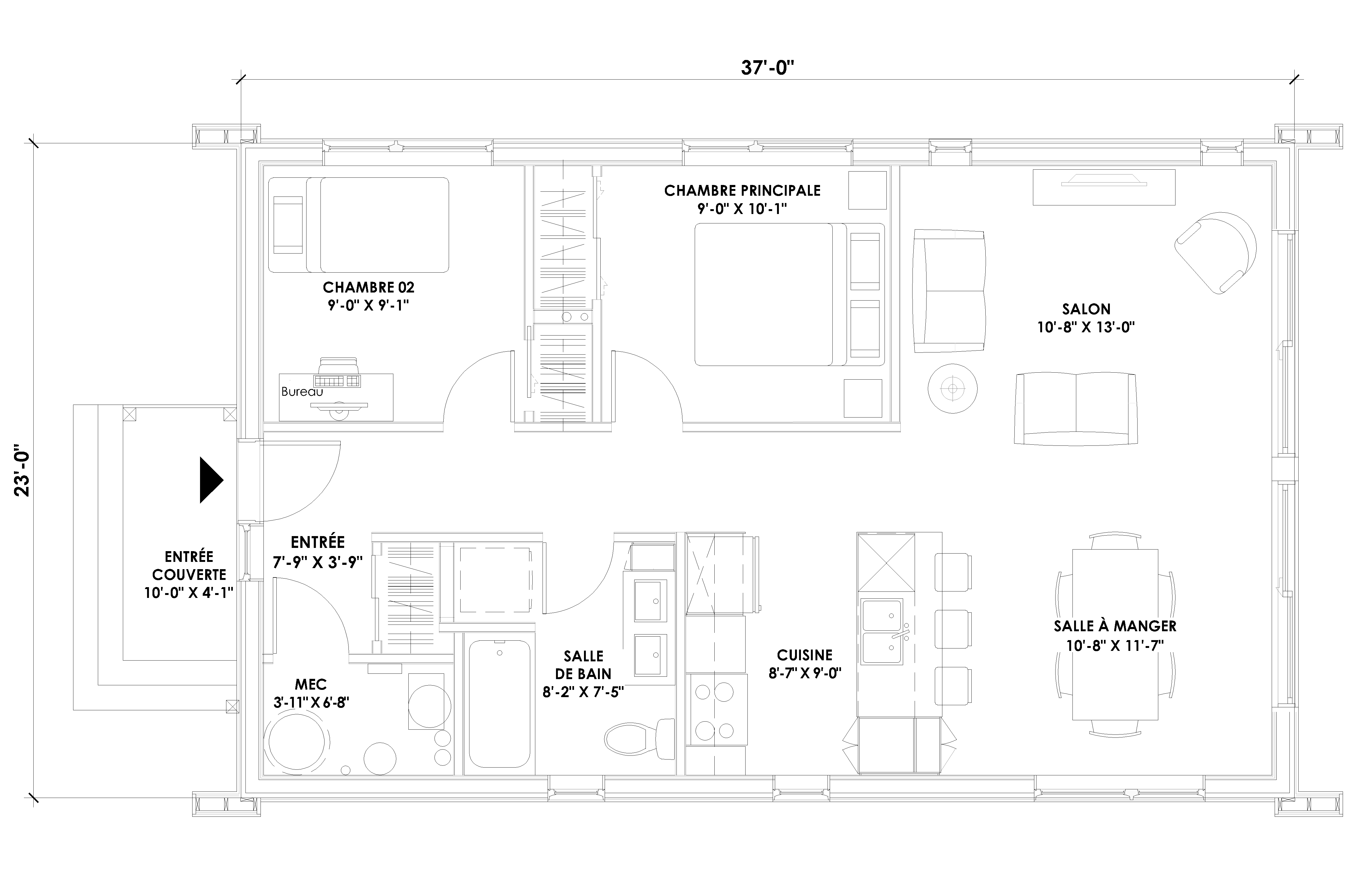
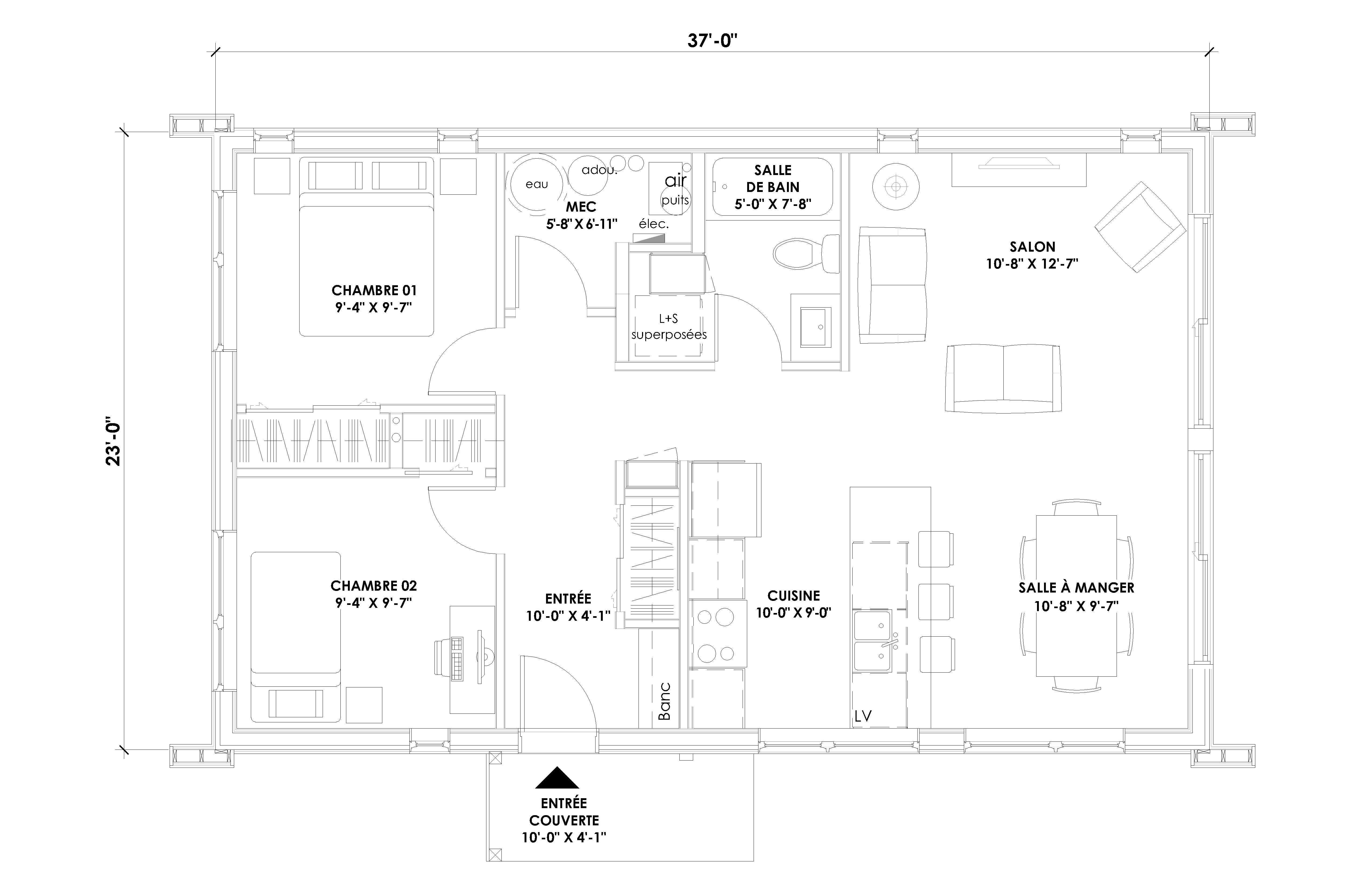
Discover the HÖST-2 model, an 850-square-foot one-storey home designed to maximize every space. With its 2 bedrooms and bathroom, it offers all the comfort you need in a warm, bright atmosphere. Imagine yourself in spacious living areas, enhanced by cathedral ceilings that invite natural light to dance through your daily life. Whether you prefer a short-side or long-side entrance, this model adapts to your desires to reflect your lifestyle.
PLANS
Höst-2 • ONE STOREY 850 ft²
One Storey

One Storey

Interested in this model?
Contact us
You live outside our service zone or wish to build this property yourself? Belvedair gives you the opportunity to buy this plan.
Buy this plan
YOU MAY ALSO LIKE
Cobalt-3+
Starting at 529 000 $
1844 ft²
MAIN FLOOR + 2ND FLOOR
3 ch. + 2 sdb + 1 s.d'eau
Premium Range

Höst-1
Starting at 259 000 $
736 ft²
ONE STOREY
1 ch. + 1 sdb
Standard Range

Prado-5+
Starting at 879 000 $
3594 ft²
WALK-OUT BASEMENT + MAIN FLOOR + 2ND FLOOR
5 ch. + 3 sdb + 1 s.d'eau
Premium Range

Looking for a plot to build on?
Discover our Eco-domains
Do you have any questions? Would you like to learn more about Belvedair?
Fill in this form and we’ll contact you shortly.