Ada-2 (+3)
875 pi²
SOUS-SOL + RDC
Style contemporain
Gamme Standard
i
Prix à partir de :
- Prêt-à-finir : 345 000 $ *
- Clé en main : 439 000 $ *
* Terrain, infrastructures et taxes en sus.
Inclus :
2 chambres
1 salle de bain
Terrasse
Sous-sol non fini
Grande fenestration
Isolation supérieure
Certification Novoclimat
En option :
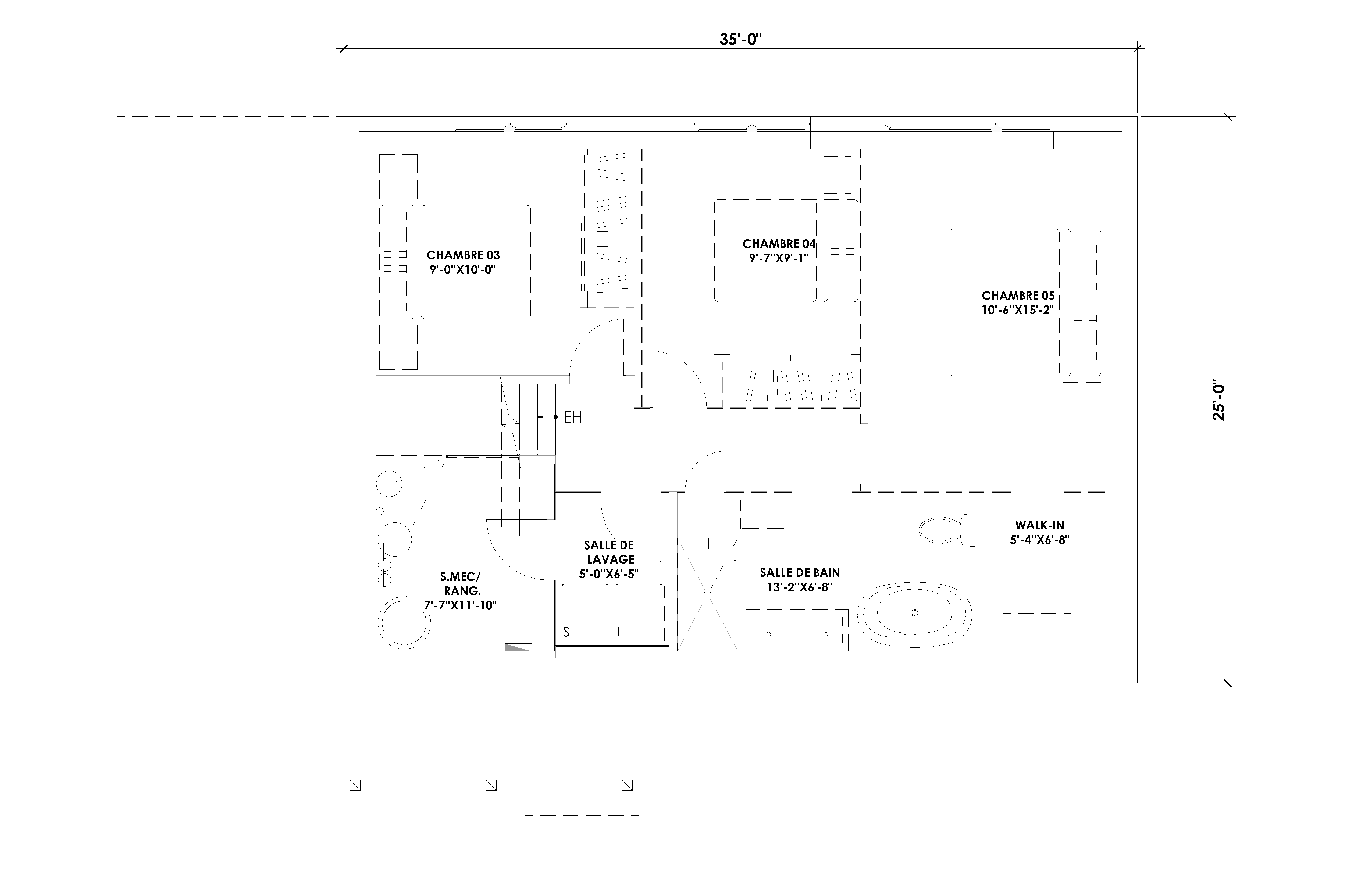
Aménagement du sous-sol (+875 pi2)
Plafond cathédrale
Foyer
Terrasse couverte
Pièce 3 saisons
Rez-de-jardin
Ce modèle de 1750 pieds carrés, avec son rez-de-chaussée accueillant deux chambres, une salle de bain, et un sous-sol non aménagé, est l’endroit idéal pour toute la famille. Une fois aménagé, le sous-sol vous permettra d’ajouter trois chambres et une salle de bain pour encore plus de confort. Disponible aussi en version rez-de-jardin, cette maison est une invitation à vivre en toute tranquillité, dans un cadre moderne et naturel, parfait pour s’épanouir au rythme de la nature.
PLANS
Ada-2 (+3) • SOUS-SOL + RDC 875 pi²
Sous-sol

Rez-de-chaussée

Ce modèle vous intéresse ?
Contactez-nous
Vous demeurez à l’extérieur de notre zone d’activités ou vous souhaitez réaliser vous-même la construction de cette propriété? Belvedair vous offre la possibilité de faire l’achat de ce plan.
Acheter ce plan
VOUS POURRIEZ AUSSI AIMER
Höst-2+
À partir de 329 000 $
885 pi²
PLAIN-PIED
2 ch. + 1 sdb
Gamme +

Lönn-3+
À partir de 449 000 $
1602 pi²
PLAIN-PIED
3 ch. + 2 sdb
Gamme +

Höst-Mini-1 (+2)
À partir de 309 000 $
624 pi²
SOUS-SOL + RDC
1 ch. + 1 sdb
Gamme Standard

Vous êtes à la recherche d'un terrain ?
Découvrez nos écodomaines
Vous avez des questions ou désirez en savoir plus sur Belvedair ?
Remplissez ce formulaire et nous vous contacterons dans les plus brefs délais.