Lönn-3+
1602 pi²
PLAIN-PIED
Style scandinave
Gamme +
i
Prix à partir de :
- Prêt-à-finir : 449 000 $ *
- Clé en main : 595 000 $ *
* Terrain, infrastructures et taxes en sus.
Inclus :
3 chambres
2 salles de bain
Terrasse couverte
Plafond cathédrale
Bureau
Grande fenestration
Isolation supérieure
Certification Novoclimat
En option :
Foyer
Pièce 3 saisons
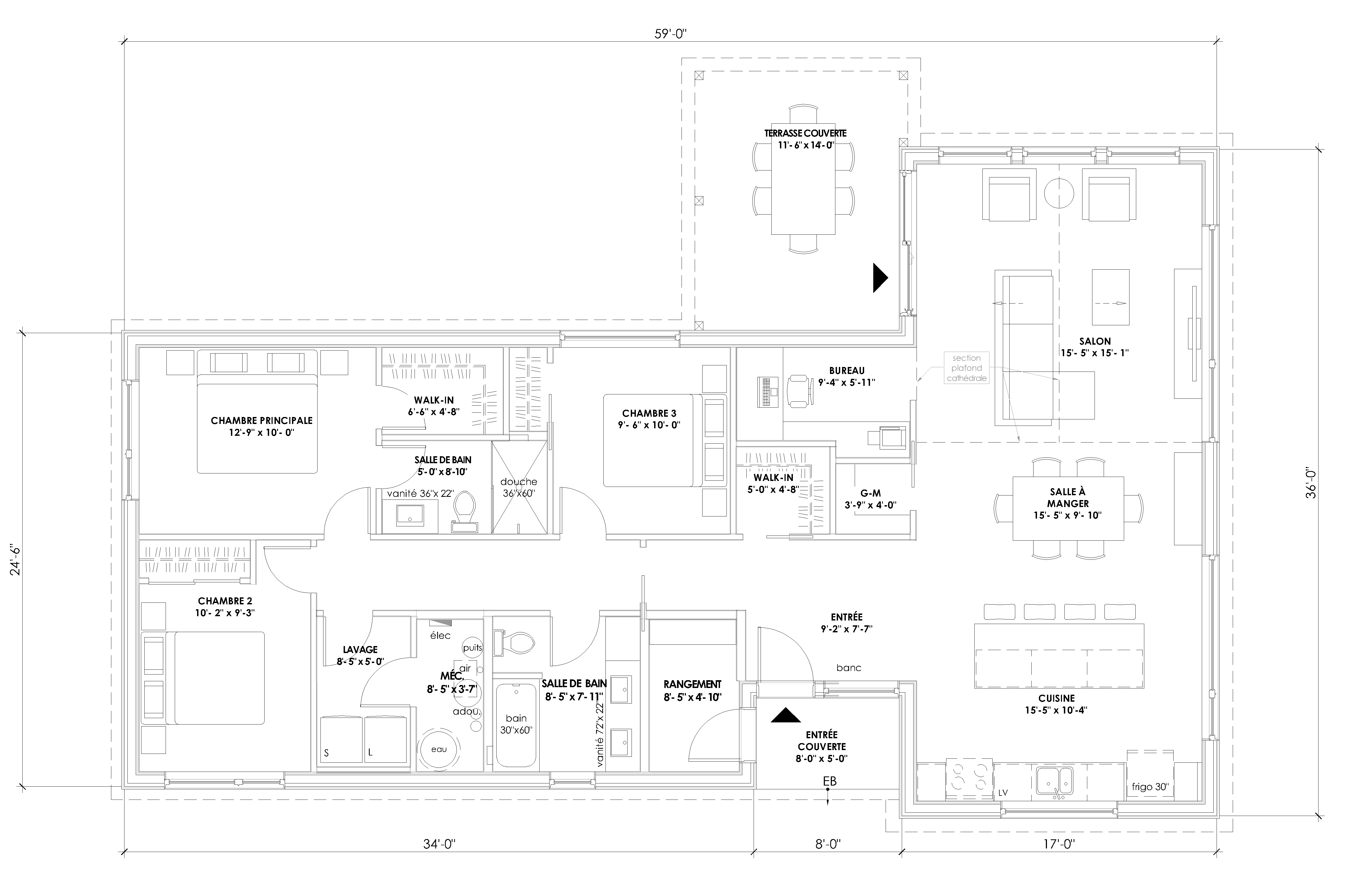
Profitez d’un cadre de vie lumineux et spacieux avec ce modèle LÖNN-3+ de 1602 pieds carrés, tout sur un seul étage. Il comprend trois chambres, deux salles de bain et un plafond cathédrale qui ajoute une dimension supplémentaire à l’espace de vie. Grâce à sa terrasse couverte, vous pourrez savourer les saisons tout en étant en parfaite harmonie avec la nature. Ce modèle vous offre tout le confort nécessaire pour vivre en toute sérénité, dans un environnement où simplicité et bien-être se conjuguent parfaitement.
PLANS
Lönn-3+ • PLAIN-PIED 1602 pi²
Plain-Pied

Ce modèle vous intéresse ?
Contactez-nous
Vous demeurez à l’extérieur de notre zone d’activités ou vous souhaitez réaliser vous-même la construction de cette propriété? Belvedair vous offre la possibilité de faire l’achat de ce plan.
Acheter ce plan
VOUS POURRIEZ AUSSI AIMER
Ada-2+
À partir de 289 000 $
875 pi²
PLAIN-PIED
2 ch. + 1 sdb
Gamme +

ADA-3+
À partir de 445 000 $
1596 pi²
PLAIN-PIED
3 ch. + 2 sdb
Gamme +

Höst-1
À partir de 259 000 $
736 pi²
PLAIN-PIED
1 ch. + 1 sdb
Gamme Standard

Vous êtes à la recherche d'un terrain ?
Découvrez nos écodomaines
Vous avez des questions ou désirez en savoir plus sur Belvedair ?
Remplissez ce formulaire et nous vous contacterons dans les plus brefs délais.