ADA-3+
1596 pi²
PLAIN-PIED
Style contemporain
Gamme +
i
Prix à partir de :
- Prêt-à-finir : 445 000 $ *
- Clé en main : 585 000 $ *
* Terrain, infrastructures et taxes en sus.
Inclus :
3 chambres
2 salles de bain
Terrasse couverte
Plafond cathédrale
Bureau
Grande fenestration
Isolation supérieure
Certification Novoclimat
En option :
Foyer
Pièce 3 saisons
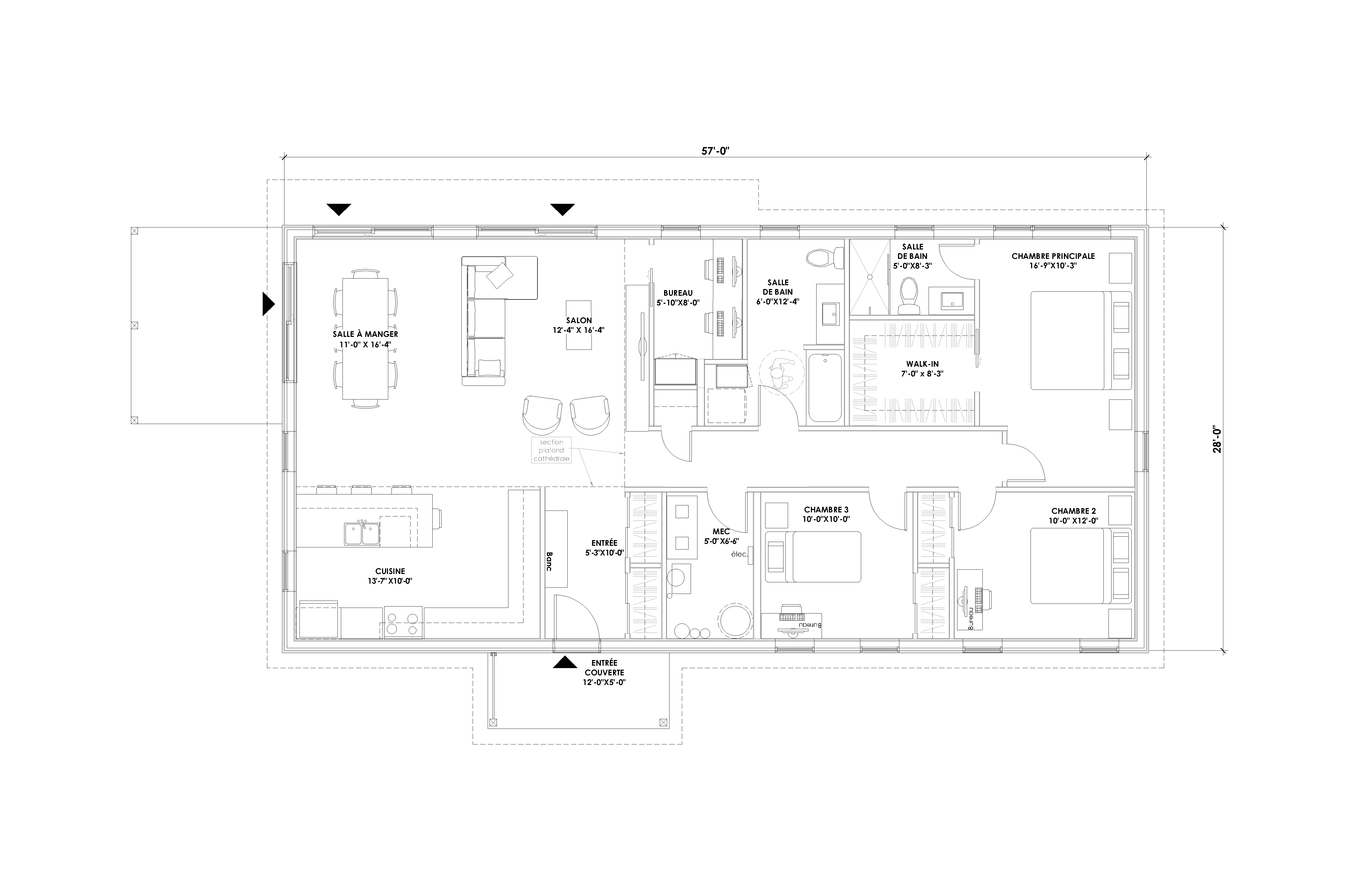
Le modèle ADA-3+ vous charmera avec ses 1596 pi² intelligemment aménagés et son style contemporain aux lignes épurées. Vous profiterez d’une aire de vie spacieuse et lumineuse, ouverte sur la cuisine et la nature, sublimée par un plafond cathédrale et une grande fenestration qui laisse entrer la lumière. Avec ses trois chambres, ses deux salles de bain et un bureau fonctionnel, cette maison répond parfaitement aux besoins des familles modernes et des télétravailleurs. Sa terrasse offre un espace idéal pour profiter des beaux jours.
PLANS
ADA-3+ • PLAIN-PIED 1596 pi²
Plain pied

Ce modèle vous intéresse ?
Contactez-nous
Vous demeurez à l’extérieur de notre zone d’activités ou vous souhaitez réaliser vous-même la construction de cette propriété? Belvedair vous offre la possibilité de faire l’achat de ce plan.
Acheter ce plan
VOUS POURRIEZ AUSSI AIMER
Höst-2+
À partir de 329 000 $
885 pi²
PLAIN-PIED
2 ch. + 1 sdb
Gamme +

Prado-5+
À partir de 879 000 $
3594 pi²
RDJ + RDC + ÉTAGE
5 ch. + 3 sdb + 1 s.d'eau
Gamme +

Ada-2 (+3)
À partir de 345 000 $
875 pi²
SOUS-SOL + RDC
2 ch. + 1 sdb
Gamme Standard

Vous êtes à la recherche d'un terrain ?
Découvrez nos écodomaines
Vous avez des questions ou désirez en savoir plus sur Belvedair ?
Remplissez ce formulaire et nous vous contacterons dans les plus brefs délais.